Hochhub Parkhebebühnen
Hochhub Parkhebebühnen., Hochhub Parkliften.
Um dass gesamte Lieferprogramm anzuschauen, einfach herunterscrollen
-----------------------------------------------------------------------------------------------------
ENGEL-HR4035; 4-Säulen Doppel Parkhebebühne (4.000kg.) Hochhub.
Doppelplattform über 5 meter breit ! mit 4.000 kg bei 3500mm Hubhöhe


ENGEL-HR4035 Hochhub 4-Säulen Doppel Parkhebebühnen:
Dies ist einer unsere 4-Säulen Parklifte, Sie haben mit diesem Modell den Vorteil dass Sie doppelt Fahrzeugen hoch parken können auf der untere Plätzen höhere Fahrzeugen wie Wohnmobile, Boote, oder Lastwagen abstellen können daher speziell entwickelt für Hallen, und gebäuden mit ein etwas höhere Decke, oder wo eine lift gebraucht wird nach ein Zweiter ebene., oder beides.
wenn Sie kein möglichkeit haben Ihre Gebaude zu erweitern in der Breite oder Länge, dann gehen Sie einfach nach oben, in der höhe" mit diese QuadroParker Parkliften.
Der Komplette Mittenteil von Plattform ist Wasser -und Flüssigkeit dicht, da tropft nicht ab zum unterparkierte Fahrzeug oder Oldtimer.
Es gibt auch ein Draussen aufstellung Model die Feuerverzinkt ist., alle Modelle sind versehen von ein feste Auffahrrampe.
Jede Parkhebebühne wird durch uns Hergestellt, Transportiert, Installiert und betriebsfertig Abgeliefert
Technische Angaben:
- Tragkraft: 4.000 kg. !!!
- Säulenhöhe: 3900 mm.
- Hubhöhe UNTER Doppel Plattform gemessen: 3500 mm.
- Plattform breite: 5000mm. (Nutzbar)
- Pulverbeschichtung, oder Verzinkt gegen Aufpreis
- Standard farben: Antrazit RAL 7016 + Orange RAL 2004 (andere Farben möglich gegen Aufpreis).
- Elektrische Verriegelung 24 Volt.
- Antrieb: 400 Volt/50Hz (3-phase)
- Eigengewicht: 1.885kg.
Preisen auf Anfrage.
------------------------------------------------------------------------------------------------------------------
Kontaktieren Sie uns
---------------------------------------------------------------------------------------------------------------------------------------------------------------------------------------------------------
ENGEL-HR30.30; 4-Säulen Hochhub Park & Transport Hebebühne (3.000kg.)


ENGEL-HR30.30 Hochhub 4-Säulen Transport & Parkhebebühnen:
Dies ist einer unsere 4-Säulen Parklifte, Sie haben mit diesem Modell den Vorteil dass Sie doppelt Fahrzeugen hoch parken können auf der untere Plätzen höhere Fahrzeugen wie Wohnmobile, Boote, oder Lastwagen abstellen können daher speziell entwickelt für Hallen, und gebäuden mit ein etwas höhere Decke, oder wo eine lift gebraucht wird nach ein Zweiter ebene., oder beides.
wenn Sie kein möglichkeit haben Ihre Gebaude zu erweitern in der Breite oder Länge, dann gehen Sie einfach nach oben, in der höhe" mit diese Transport- Parkliften.
Der Komplette Mittenteil von Plattform ist Wasser -und Flüssigkeit dicht, da tropft nicht ab zum unterparkierte Fahrzeug oder Oldtimer.
Es gibt auch ein Draussen aufstellung Model die Feuerverzinkt ist., alle Modelle sind versehen von ein feste Auffahrrampe.
Jede Parkhebebühne wird durch uns Hergestellt, Transportiert, Installiert und betriebsfertig Abgeliefert
Technische Angaben:
- Tragkraft: 3.000 kg.
- Säulenhöhe: 3454 mm.
- Hubhöhe UNTER Doppel Plattform gemessen: 3000 mm.
- Plattform breite: 2200mm. (Nutzbar)
- Durchfahrbreite: 2406mm.
- Plattfromlänge: 4570mm. (Nutzbar)
- Pulverbeschichtung, oder Verzinkt gegen Aufpreis
- Standard farben: Antrazit RAL 7016 + Orange RAL 2004 (andere Farben möglich gegen Aufpreis).
- Elektrische Verriegelung 24 Volt.
- Antrieb: 220 Volt/50Hz (1-phase) , 2.2kW.
- Eigengewicht: 1.078kg.
Preisen auf Anfrage.
-------------------------
Kontaktieren Sie uns
---------------------------------------------------------------------------------------------------------------------------------------------------------------------------------------------------------
ENGEL-HR30.4; 4-Säulen Hochhub Park & Transport Hebebühne (3.000kg.)


ENGEL-HR30.4 ; Hochhub 4-Säulen Transport & Parkhebebühnen:
Dies ist einer unsere 4-Säulen Parklifte, Sie haben mit diesem Modell den Vorteil dass Sie doppelt Fahrzeugen hoch parken können auf der untere Plätzen höhere Fahrzeugen wie Wohnmobile, Boote, oder Lastwagen abstellen können daher speziell entwickelt für Hallen, und Gebäuden mit ein etwas höhere Decke, oder wo eine Lift gebraucht wird nach ein Zweiter ebene., oder beides. Wenn Sie kein Möglichkeit haben Ihre Gebäude zu erweitern in der Breite oder Länge, dann gehen Sie einfach nach oben, in der höhe" mit diese Transport- Parkliften. Der kompletter Mittenteil von Plattform ist Wasser -und Flüssigkeit dicht, da tropft nicht ab zum unterparkierte Fahrzeug oder Oldtimer.
Es gibt auch ein Draussen Aufstellung Model die Feuerverzinkt ist., alle Modelle sind versehen von ein feste Auffahrrampe.
wir haben der 3 meist von uns gebaute Hebebühnen hierunter gelisted, aber wir sind in der Lage fast jede Hubhöhe zu verwirklichen
Jede Parkhebebühne wird durch uns Hergestellt, Transportiert, Installiert und betriebsfertig Abgeliefert
Technische Angaben:
- Tragkraft: 3.000 kg.
- Säulenhöhe: 3303 mm. (2800) / 4003 mm. (3500) / 4503 mm. (4000)
- Hubhöhe UNTER Doppel Plattform gemessen: 2800 / 3500 / 4000 mm., & Höher wenn gewünscht.
- Plattform breite: 2200mm. (Nutzbar)
- Durchfahrbreite: 2588mm. (2800 + 3500) / 2788mm. (4000)
- Plattformlänge: 5000mm. (2800) / 5300mm. (3500) / 5800mm. (4000) (Nutzbar)
- Pulverbeschichtung, oder Verzinkt gegen Aufpreis
- Standard Farben: Anthrazit RAL 7016 + Orange RAL 2004 (andere Farben möglich gegen Aufpreis).
- Elektrische Verriegelung 24 Volt.
- Antrieb: 220 Volt/50Hz (1-phase) , 2.2kW.
- Eigengewicht: ab 1.278kg.
Preisen auf Anfrage.
--------------------------------------
ENGEL-HR30.4-2800: Hubhöhe Unterseite Plattform 2.800cm.

Kontaktieren Sie uns
ENGEL-HR30.4-3500: Hubhöhe Unterseite Plattform 3.500cm.

Kontaktieren Sie uns
ENGEL-HR30.4-4000: Hubhöhe Unterseite Plattform 4.000cm.

Kontaktieren Sie uns
---------------------------------------------------------------------------------------------------------------------------------------------------------------------------------------------------------
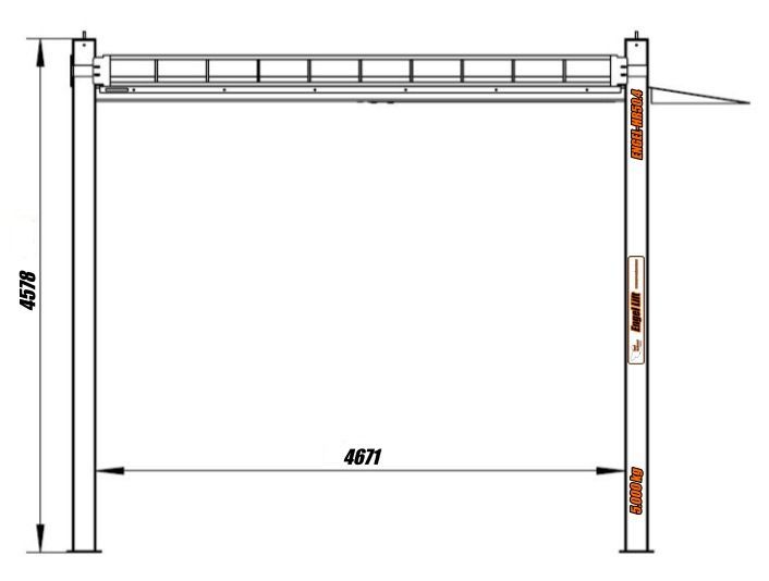
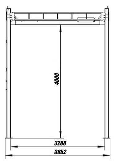
ENGEL-HR50.4; 4-Säulen Hochhub Park & Transport Hebebühne (5.000kg.)

ENGEL-HR50.4 Hochhub 4-Säulen Transport & Parkhebebühnen:
Dies ist einer unsere 4-Säulen Parklifte, Sie haben mit diesem Modell den Vorteil dass Sie doppelt Fahrzeugen hoch parken können auf der untere Plätzen höhere Fahrzeugen wie Wohnmobile, Boote, oder Lastwagen abstellen können daher speziell entwickelt für Hallen, und gebäuden mit ein etwas höhere Decke, oder wo eine lift gebraucht wird nach ein Zweiter ebene., oder beides.
wenn Sie kein möglichkeit haben Ihre Gebaude zu erweitern in der Breite oder Länge, dann gehen Sie einfach nach oben, in der höhe" mit diese QuadroParker Parkliften.
Der Komplette Mittenteil von Plattform ist Wasser -und Flüssigkeit dicht, da tropft nicht ab zum unterparkierte Fahrzeug oder Oldtimer.
Es gibt auch ein Draussen aufstellung Model die Feuerverzinkt ist., alle Modelle sind versehen von ein feste Auffahrrampe.
Jede Parkhebebühne wird durch uns Hergestellt, Transportiert, Installiert und betriebsfertig Abgeliefert
Technische Angaben:
- Tragkraft: 5.000 kg. !!!
- Säulenhöhe: 4578 mm.
- Hubhöhe UNTER Doppel Plattform gemessen: 4000 mm.
- Plattform breite: 2573mm. (Nutzbar)
- Durchfahrbreite: 3288mm.
- Plattfromlänge: 4974mm. (Nutzbar)
- Pulverbeschichtung, oder Verzinkt gegen Aufpreis
- Standard farben: Antrazit RAL 7016 + Orange RAL 2004 (andere Farben möglich gegen Aufpreis).
- Elektrische Verriegelung 24 Volt.
- Antrieb: 400 Volt/50Hz (3-phase) , 4.0kW.
- Eigengewicht: 1.992kg.
Preisen auf Anfrage.
---------------------------
Kontaktieren Sie uns
---------------------------------------------------------------------------------------------------------------------------------------------------------------------------------------------------------
ENGEL SH-3500; Scheren Hochhub Transport Hebebühne (3.500kg.)


ENGEL SH-3500 Hochhub Scheren Transporthebebühnen:
Sie haben mit diesem Modell den Vorteil dass Sie Fahrzeugen, Maschinen oder Handelswaren hoch zu fahren können auf der untere Platz der Hebebühne können keinen Fahrzeugen,Wohnmobile, Boote, oder Lastwagen abstellt werden daher speziell entwickelt für Hallen, und gebäuden mit ein etwas höhere Decke, oder wo eine lift gebraucht wird nach ein Zweiter ebene., oder Etrasol Boden
wenn Sie kein möglichkeit haben Ihre Gebaude zu erweitern in der Breite oder Länge, dann gehen Sie einfach nach oben, in der höhe" mit diese Transportliften.
Der Komplette Mittenteil von Plattform ist Wasser -und Flüssigkeit dicht, .
Es gibt auch ein Draussen aufstellung Model die Feuerverzinkt ist., alle Modelle sind versehen von ein feste Auffahrrampe., und werden in ein grube installiert
Jede Parkhebebühne wird durch uns Hergestellt, Transportiert, Installiert und betriebsfertig Abgeliefert
Technische Angaben:
- Tragkraft: max. 3.500 kg.
- Scherenhub höhe: Kunden oder Projekt spezifizisches.
- Hubhöhe UNTER Plattform gemessen: Kunden oder Projekt spezifisches
- Plattform breite: Kunden oder Projekt spezifisches
- Plattfromlänge: Kunden oder Projekt spezifisches
- Pulverbeschichtung, oder Verzinkt gegen Aufpreis
- Standard farben: Antrazit RAL 7016 + Orange RAL 2004 (andere Farben möglich gegen Aufpreis).
- Elektrische Verriegelung 24 Volt.
- Antrieb: 400 Volt/50Hz (3-phasen) , 2.2 - 5kW.
- Eigengewicht: ab 1.423kg.
Preisen auf Anfrage.
----------------------------
Kontaktieren Sie uns
---------------------------------------------------------------------------------------------------------------------------------------------------------------------------------------------------------
ES-3000: HOCHHUB SCHEREN PARKHEBEBÜHNE HOCHHUB TRANSPORT HEBEBÜHNEN





ES-3000 : Hochhub Scheren Parkhebebühne., Hochhub Transport Hebebühnen.
Der ES-3000 ist eine weiter Entwickelung basiert auf der SP-2700 Bauart von Scheren Parkhebebühnen, auch versehen von uns E.S.H.S Hubsystem was ein Garant ist für ein Haargenaue Gleichlauf der Scheren bei anhub sowie bei absenken.
Der ES-3000 ist gedacht als ein Parkhebebühne mit der Möglichkeit als "Transport Hebebühnen" nach dem zweiter Stock, und ein Grossraum Fahrzeug (z.b Wohnmobil, Lieferwagen, oder Kleinlaster) darunter zum Parkieren
Der "Standard" Hebebühne hat ein Tragleitung von 2.500 kg, und hat ein Hub von 3 Meter maximal.
wir bauen diese Scheren Hebebühnen auch in Doppel Scheren mit ein Hub von 6 Meter maximal.
und auch mit Triple Scheren, aber dann in doppelt mit ein Hub von 9 Meter maximal.
Technische Daten:
- Tragkraft; 2.500 kg / 3.000 kg auf Anfrage
- Hubhöhe Oberkante Plattform: max. 3.000 mm.
- Durchfahrhöhe unterseits Plattform: 2.650 mm.
- Durchfahrbreite: 2.150 mm, auf Wunsch bis 2.600mm möglich.
- Plattform länge: 5130 mm. (Nützbar 4576mm)
- Plattform breite: 2.450 mm, auf Wunsch bis 2.950 mm möglich.
- Antrieb: 220V/50Hz oder 380 V/50Hz.
Preisen auf Anfrage.
-------------------------------------------------------------------------------------------------------------------
Kontaktieren Sie uns

















